HIKE, BIKE & SKI ALM HÜTTE AUF 2000 HÖHENMETER

Video zu dieser Immobilie
3D-Rundgang zu dieser Immobilie
Datenblatt
ImmoNr 1964_i
Nutzungsart Gewerbe
Vermarktungsart Kauf
Objektart Gastgewerbe
Objekttyp Gastronomie
PLZ 39013
Ort Pfelders
Land Italien
Gastrofläche 383 m²
Katasterfläche 497
Kabel Sat TV Ja
Terrasse Ja
ImmoNr 1964_i Nutzungsart Gewerbe
Vermarktungsart Kauf Objektart Gastgewerbe
Objekttyp Gastronomie PLZ 39013
Ort Pfelders Land Italien
Gastrofläche 383 m² Katasterfläche 497
Kabel Sat TV Ja Terrasse Ja

Hinweis zur Provision: 4% + MwSt.

Details zur Immobilie
Almhütte in Pfelders – urig, modern und direkt am Lift auf ca. 2000 Höhenmetern

Diese kürzlich umgebaute Almhütte in traumhafter Lage von Pfelders vereint traditionellen Charme mit zeitgemäßem Komfort. Durch ihre Ost-Ausrichtung genießen Sie die den ganzen Tag Sonne und einen unvergleichlichen Blick auf die umliegende Bergwelt. Die Grünbodenhütte ist bequem direkt mit dem Lift erreichbar – Sommer wie Winter ein perfekter Ausgangspunkt für Wanderer, Skifahrer und Genießer.

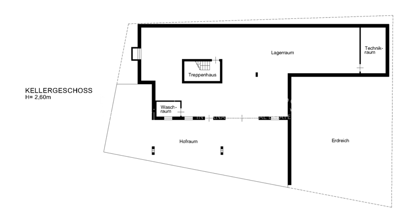
Die Hütte im Überblick – 383 m² auf 3 Etagen:

Kellergeschoss: Lagerraum, Garage, Technikraum, Waschraum
Erdgeschoss: Bar/Gaststube mit Balkon, gemütliches Stübele, Gäste-WCs, Küche und sonnige Terrasse
Obergeschoss: zusätzliche Terrasse mit Panoramaausblick sowie die Privatwohnung

Wohnung mit Privatsphäre – 92 m² Katasterfläche:
Im Obergeschoss befindet sich eine charmante Betreiber- oder Mitarbeiterwohnung mit zwei Schlafzimmer, Wohnküche, Badezimmer mit Dusche und separatem WC. Ein Balkon mit Bergblick laden zum Entspannen ein.

Die Immobilie ist aktuell bis Ende April 2026 verpachtet – eine attraktive Gelegenheit für Investoren oder künftige Eigennutzer mit Planungsvorlauf.

Ihr alpines Hideaway – vielseitig nutzbar als Gastronomiebetrieb, Einkehrhütte oder private Lodge.
Pfelders liegt auf 1.622 m Höhe am Ende des idyllischen Passeiertals in Südtirol – ein alpines Juwel, das Ruhe, Ursprünglichkeit und perfekte touristische Infrastruktur vereint. Das autofreie Dorf ist Teil des Naturparks Texelgruppe und bietet zu jeder Jahreszeit ein unvergleichliches Naturerlebnis: im Sommer als Wander- und Bikeparadies, im Winter als familienfreundliches Skigebiet mit modernen Aufstiegsanlagen.

Die Grünbodenhütte ist direkt mit der Grünbodenbahn erreichbar und befindet sich mitten im Ski- und Wandergebiet – komfortabel, sonnig und mit atemberaubendem Blick auf die Gipfel der Ötztaler Alpen.

Entfernungen:
Meran: ca. 40 Minuten (35 km)
Bozen: ca. 1 Stunde 15 Minuten (70 km)
München: ca. 3 Stunden 45 Minuten (260 km)
Mailand: ca. 4 Stunden (320 km)

Pfelders ist sowohl für Gäste als auch für Betreiber hervorragend erreichbar – und bietet gleichzeitig die Abgeschiedenheit und alpine Ruhe, die man in dieser Höhenlage sucht.
Alle Angaben sind indikativ und können jederzeit Abänderungen unterliegen.
Käufer-Provision 4% + MwSt.
Währung
Baujahr 2018
Zustand Sehr gut / Modernisiert
Details zur Immobilie
Energieausweisdaten
Baujahr 2018
Zustand Sehr gut / Modernisiert
Beschreibung der Immobilie Almhütte in Pfelders – urig, modern und direkt am Lift auf ca. 2000 Höhenmetern

Diese kürzlich umgebaute Almhütte in traumhafter Lage von Pfelders vereint traditionellen Charme mit zeitgemäßem Komfort. Durch ihre Ost-Ausrichtung genießen Sie die den ganzen Tag Sonne und einen unvergleichlichen Blick auf die umliegende Bergwelt. Die Grünbodenhütte ist bequem direkt mit dem Lift erreichbar – Sommer wie Winter ein perfekter Ausgangspunkt für Wanderer, Skifahrer und Genießer.

Die Hütte im Überblick – 383 m² auf 3 Etagen:

Kellergeschoss: Lagerraum, Garage, Technikraum, Waschraum
Erdgeschoss: Bar/Gaststube mit Balkon, gemütliches Stübele, Gäste-WCs, Küche und sonnige Terrasse
Obergeschoss: zusätzliche Terrasse mit Panoramaausblick sowie die Privatwohnung

Wohnung mit Privatsphäre – 92 m² Katasterfläche:
Im Obergeschoss befindet sich eine charmante Betreiber- oder Mitarbeiterwohnung mit zwei Schlafzimmer, Wohnküche, Badezimmer mit Dusche und separatem WC. Ein Balkon mit Bergblick laden zum Entspannen ein.

Die Immobilie ist aktuell bis Ende April 2026 verpachtet – eine attraktive Gelegenheit für Investoren oder künftige Eigennutzer mit Planungsvorlauf.

Ihr alpines Hideaway – vielseitig nutzbar als Gastronomiebetrieb, Einkehrhütte oder private Lodge.
Hier befindet sich die Immobilie Pfelders liegt auf 1.622 m Höhe am Ende des idyllischen Passeiertals in Südtirol – ein alpines Juwel, das Ruhe, Ursprünglichkeit und perfekte touristische Infrastruktur vereint. Das autofreie Dorf ist Teil des Naturparks Texelgruppe und bietet zu jeder Jahreszeit ein unvergleichliches Naturerlebnis: im Sommer als Wander- und Bikeparadies, im Winter als familienfreundliches Skigebiet mit modernen Aufstiegsanlagen.

Die Grünbodenhütte ist direkt mit der Grünbodenbahn erreichbar und befindet sich mitten im Ski- und Wandergebiet – komfortabel, sonnig und mit atemberaubendem Blick auf die Gipfel der Ötztaler Alpen.

Entfernungen:
Meran: ca. 40 Minuten (35 km)
Bozen: ca. 1 Stunde 15 Minuten (70 km)
München: ca. 3 Stunden 45 Minuten (260 km)
Mailand: ca. 4 Stunden (320 km)

Pfelders ist sowohl für Gäste als auch für Betreiber hervorragend erreichbar – und bietet gleichzeitig die Abgeschiedenheit und alpine Ruhe, die man in dieser Höhenlage sucht.
Sonstige Angaben zur Immobilie Alle Angaben sind indikativ und können jederzeit Abänderungen unterliegen.
Diese Immobilien könnten Sie interessieren
Ansprechpartner

Frau Sophia Biasi
Via Leonardo da Vinci Strasse 9
39012 Merano

Telefon 0473236613 E-Mail bs@irs-benedetti.com

Sofortanfrage

Mit * gekennzeichnete Felder sind Pflichtangaben

Lage der Immobilie
Dr. Benedetti Real Service® - seit 1945

Rufen Sie uns an. Wir freuen uns auf ein persönliches Gespräch.

+39 0473 236613
Kontakt Kontakt