BÜRO-IMMOBILIE IN UNTERMAIS ZU VERKAUFEN

Video zu dieser Immobilie
3D-Rundgang zu dieser Immobilie
Datenblatt
Kaufpreis 75.000 €
ImmoNr 1994
Nutzungsart Gewerbe
Vermarktungsart Kauf
Objektart Büro/Praxen
Objekttyp Bürofläche
PLZ 39012
Ort Meran
Land Italien
Stock 2
Katasterfläche 67
Kaufpreis 75.000 € ImmoNr 1994
Nutzungsart Gewerbe Vermarktungsart Kauf
Objektart Büro/Praxen Objekttyp Bürofläche
PLZ 39012 Ort Meran
Land Italien Stock 2
Katasterfläche 67

Hinweis zur Provision: 4% + MwSt.

Details zur Immobilie
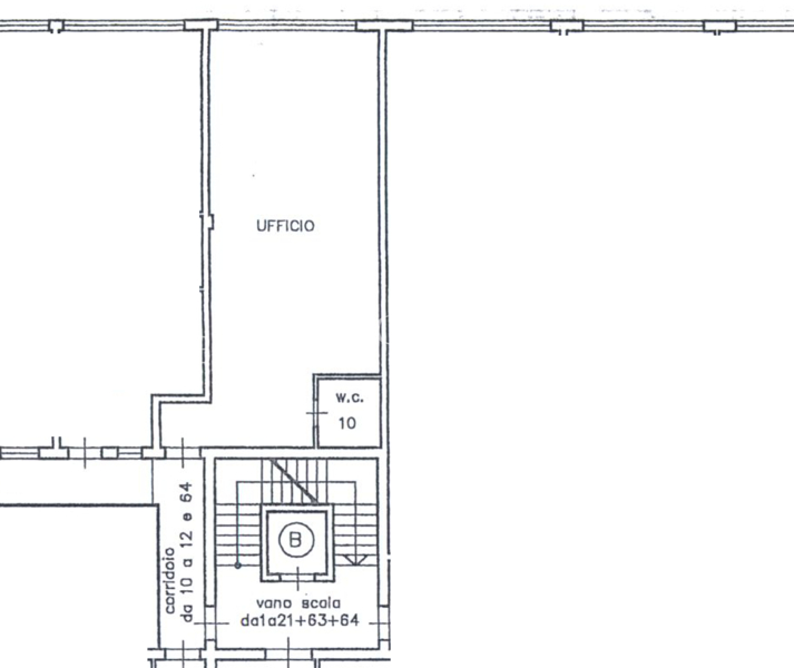
Modernes, helles Büro im 2. Stock eines Industriegebäudes in der Luis-Zuegg-Straße

Die Immobilie überzeugt durch ihre helle, freundliche Atmosphäre und eine flexible Raumgestaltung, die sich ideal für unterschiedlichste Berufszweige eignet – von klassischen Bürotätigkeiten über Beratungsdienstleistungen bis hin zu kreativen Arbeitsbereichen.

Das Büro verfügt über ein eigenes Badezimmer, was den Arbeitsalltag für Mitarbeiter und Kunden besonders angenehm gestaltet.

Obwohl kein zugewiesener Parkplatz im Eigentum vorhanden ist, stehen zahlreiche Parkmöglichkeiten in unmittelbarer Nähe zur Verfügung, was eine unkomplizierte Erreichbarkeit gewährleistet.

Highlights:
Gute Erreichbarkeit
Parkmöglichkeiten in der Umgebung

Ein idealer Standort für Unternehmen, die eine funktionale und professionelle Arbeitsumgebung suchen.
Die Immobilie befindet sich in der Luis-Zuegg-Straße in Meran, einem gut erreichbaren Gewerbegebiet mit optimaler Anbindung an die wichtigsten Verkehrswege. Das Umfeld ist geprägt von zahlreichen Unternehmen und Dienstleistern, was die Lage für verschiedenste Geschäftsaktivitäten besonders attraktiv macht. Parkmöglichkeiten sind in der näheren Umgebung ausreichend vorhanden, und auch öffentliche Verkehrsmittel sind schnell erreichbar.
Alle Angaben sind indikativ und können jederzeit Abänderungen unterliegen.
Kaufpreis 75.000 €
Käufer-Provision 4% + MwSt.
Währung
Zustand Gut / Ausreichend
Details zur Immobilie
Energieausweisdaten
Zustand Gut / Ausreichend
Beschreibung der Immobilie Modernes, helles Büro im 2. Stock eines Industriegebäudes in der Luis-Zuegg-Straße

Die Immobilie überzeugt durch ihre helle, freundliche Atmosphäre und eine flexible Raumgestaltung, die sich ideal für unterschiedlichste Berufszweige eignet – von klassischen Bürotätigkeiten über Beratungsdienstleistungen bis hin zu kreativen Arbeitsbereichen.

Das Büro verfügt über ein eigenes Badezimmer, was den Arbeitsalltag für Mitarbeiter und Kunden besonders angenehm gestaltet.

Obwohl kein zugewiesener Parkplatz im Eigentum vorhanden ist, stehen zahlreiche Parkmöglichkeiten in unmittelbarer Nähe zur Verfügung, was eine unkomplizierte Erreichbarkeit gewährleistet.

Highlights:
Gute Erreichbarkeit
Parkmöglichkeiten in der Umgebung

Ein idealer Standort für Unternehmen, die eine funktionale und professionelle Arbeitsumgebung suchen.
Hier befindet sich die Immobilie Die Immobilie befindet sich in der Luis-Zuegg-Straße in Meran, einem gut erreichbaren Gewerbegebiet mit optimaler Anbindung an die wichtigsten Verkehrswege. Das Umfeld ist geprägt von zahlreichen Unternehmen und Dienstleistern, was die Lage für verschiedenste Geschäftsaktivitäten besonders attraktiv macht. Parkmöglichkeiten sind in der näheren Umgebung ausreichend vorhanden, und auch öffentliche Verkehrsmittel sind schnell erreichbar. Sonstige Angaben zur Immobilie Alle Angaben sind indikativ und können jederzeit Abänderungen unterliegen.
Ansprechpartner

Frau Sophia Biasi
Via Leonardo da Vinci Strasse 9
39012 Merano

Telefon 0473236613 E-Mail bs@irs-benedetti.com

Sofortanfrage

Mit * gekennzeichnete Felder sind Pflichtangaben

Lage der Immobilie
Dr. Benedetti Real Service® - seit 1945

Rufen Sie uns an. Wir freuen uns auf ein persönliches Gespräch.

+39 0473 236613
Kontakt Kontakt