Diese charmante Dachgeschosswohnung in Maisonette-Ausführung besticht durch ihren besonderen Wohncharakter mit hochwertigem Holzoberboden und sichtbaren Holzbalken, die für eine warme und einladende Atmosphäre sorgen.
Die Wohnung befindet sich im dritten und letzten Stockwerk und bietet eine durchdachte Raumaufteilung:
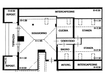
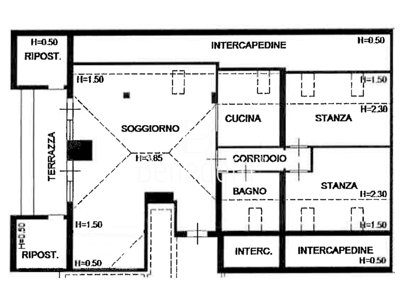
Ein großzügiges und lichtdurchflutetes Wohnzimmer mit Küchennische und direktem Zugang zur Terrasse, ideal für entspannte Stunden im Freien. Zwei praktische Abstellräume auf der linken und rechten Seite der Terrasse bieten zusätzlichen Stauraum. Es gibt zwei große Schlafzimmer sowie ein Badezimmer mit Dachfenstern.
Im 1. Kellergeschoss befindet sich ein eigener Kellerraum und im 2. Kellergeschoss finden Sie eine Garage mit ca. 22 m², komfortabel befahrbar.
Die Wohnung eignet sich ideal für Familien, Paare mit Platzbedarf oder auch als Ferienwohnung. Durch den offenen Grundriss und die natürliche Materialwahl bietet sie zudem hervorragende Möglichkeiten für einen individuellen, personalisierbaren Einrichtungsstil.
Die Wohnung befindet sich in zentraler Lage von Gargazon, direkt an der Haupstraße und überzeugt durch ihre ausgezeichnete Verkehrsanbindung sowie die Nähe zu sämtlichen Einrichtungen des täglichen Bedarfs. Einkaufsmöglichkeiten, Cafés, Restaurants, Apotheke, Bank sowie Kindergarten und Schule sind bequem zu Fuß erreichbar.
Dank der strategisch günstigen Lage zwischen Bozen und Meran ist Gargazon ein idealer Wohnort für Pendler. Die Anbindung an die Schnellstraße MeBo sowie der Bahnhof ermöglichen eine rasche Erreichbarkeit der umliegenden Ortschaften und Städte.
Trotz der zentralen Lage bietet die Umgebung einen hohen Freizeit- und Erholungswert. Spazier- und Radwege, Grünflächen sowie die Nähe zur Etsch laden zu sportlichen Aktivitäten und Erholung im Freien ein. Die sonnige Lage im Etschtal sorgt zudem für ein angenehmes Wohnklima.
Alle Angaben sind indikativ und können jederzeit Abänderungen unterliegen.
Kaufpreis
450.000 €
Käufer-Provision
4% + MwSt.
Währung
€
Baujahr
2000
Zustand
Gut / Ausreichend
Details zur Immobilie
Energieausweisdaten
Baujahr
2000
Zustand
Gut / Ausreichend
Beschreibung der ImmobilieDiese charmante Dachgeschosswohnung in Maisonette-Ausführung besticht durch ihren besonderen Wohncharakter mit hochwertigem Holzoberboden und sichtbaren Holzbalken, die für eine warme und einladende Atmosphäre sorgen.
Die Wohnung befindet sich im dritten und letzten Stockwerk und bietet eine durchdachte Raumaufteilung:
Ein großzügiges und lichtdurchflutetes Wohnzimmer mit Küchennische und direktem Zugang zur Terrasse, ideal für entspannte Stunden im Freien. Zwei praktische Abstellräume auf der linken und rechten Seite der Terrasse bieten zusätzlichen Stauraum. Es gibt zwei große Schlafzimmer sowie ein Badezimmer mit Dachfenstern.
Im 1. Kellergeschoss befindet sich ein eigener Kellerraum und im 2. Kellergeschoss finden Sie eine Garage mit ca. 22 m², komfortabel befahrbar.
Die Wohnung eignet sich ideal für Familien, Paare mit Platzbedarf oder auch als Ferienwohnung. Durch den offenen Grundriss und die natürliche Materialwahl bietet sie zudem hervorragende Möglichkeiten für einen individuellen, personalisierbaren Einrichtungsstil.Hier befindet sich die ImmobilieDie Wohnung befindet sich in zentraler Lage von Gargazon, direkt an der Haupstraße und überzeugt durch ihre ausgezeichnete Verkehrsanbindung sowie die Nähe zu sämtlichen Einrichtungen des täglichen Bedarfs. Einkaufsmöglichkeiten, Cafés, Restaurants, Apotheke, Bank sowie Kindergarten und Schule sind bequem zu Fuß erreichbar.
Dank der strategisch günstigen Lage zwischen Bozen und Meran ist Gargazon ein idealer Wohnort für Pendler. Die Anbindung an die Schnellstraße MeBo sowie der Bahnhof ermöglichen eine rasche Erreichbarkeit der umliegenden Ortschaften und Städte.
Trotz der zentralen Lage bietet die Umgebung einen hohen Freizeit- und Erholungswert. Spazier- und Radwege, Grünflächen sowie die Nähe zur Etsch laden zu sportlichen Aktivitäten und Erholung im Freien ein. Die sonnige Lage im Etschtal sorgt zudem für ein angenehmes Wohnklima.Sonstige Angaben zur ImmobilieAlle Angaben sind indikativ und können jederzeit Abänderungen unterliegen.
Diese Immobilien könnten Sie interessieren
Ansprechpartner
Frau Sophia Biasi
Via Leonardo da Vinci Strasse 9
39012 Merano