MERANO, 196 SQM NET OFFICE SPACE FOR RENT ON RENNWEG

Video zu dieser Immobilie
3D-Rundgang zu dieser Immobilie
datasheet
Basic rent 2.000 €
PropNo 1723
Type of use Commercial
Type of commercialization Rent
Type of property Offices/Medical facilities
Kind of property Office area
Postcode 39012
City Merano
Country Italy
Stock 2
District Stadtzentrum / Centro Città
Office area 197 sqm
Cadastral surface 257
Floor Laminate flooring
Elevator No lift
Basic rent 2.000 € PropNo 1723
Type of use Commercial Type of commercialization Rent
Type of property Offices/Medical facilities Kind of property Office area
Postcode 39012 City Merano
Country Italy Stock 2
District Stadtzentrum / Centro Città Office area 197 sqm
Cadastral surface 257 Floor Laminate flooring
Elevator No lift

Information commission:

Real estate details
Merano/Center, Rennweg/Arcades.

Spacious office space, fully wired, available for rent.

Bright, sunny office with 12 windows.

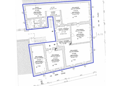
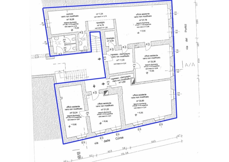
The property is composed as follows:
2nd Floor: Entrance area with reception, five office rooms, archive, two storage rooms, two bathrooms (3 toilets).

Net area: 196.5 sqm
Land registry area: 257 sqm
Year of construction: 2004, fully renovated
Elevator: No

Rent: Euro 2,000/month plus VAT and ancillary costs.

All the information above is indicative and may be subject to changes and corrections at any time.
Basic rent 2.000 €
Currency
Year of construction 2004
Real estate details
Energy pass data
Year of construction 2004
Description of property Merano/Center, Rennweg/Arcades.

Spacious office space, fully wired, available for rent.

Bright, sunny office with 12 windows.

The property is composed as follows:
2nd Floor: Entrance area with reception, five office rooms, archive, two storage rooms, two bathrooms (3 toilets).

Net area: 196.5 sqm
Land registry area: 257 sqm
Year of construction: 2004, fully renovated
Elevator: No

Rent: Euro 2,000/month plus VAT and ancillary costs.

All the information above is indicative and may be subject to changes and corrections at any time.
This real estate may interest you
Contact person

Ms. Sabine Benedetti
Via Leonardo Da Vinci 9 Straße
39012 Meran/o

Phone +39 0473 236613 Email sb@irs-benedetti.com

Instant request

Fields marked with * are mandatory fields and have to be filled in.

Property location
Dr. Benedetti Real Service® - seit 1945

Call us. We look forward to a personal conversation.

+39 0473 236613
Contact Contact